Automazione CAME per cancello a battente
Contatto
Contatto
Per maggiori informazioni, contatta il nostro commerciale:
Descrizione
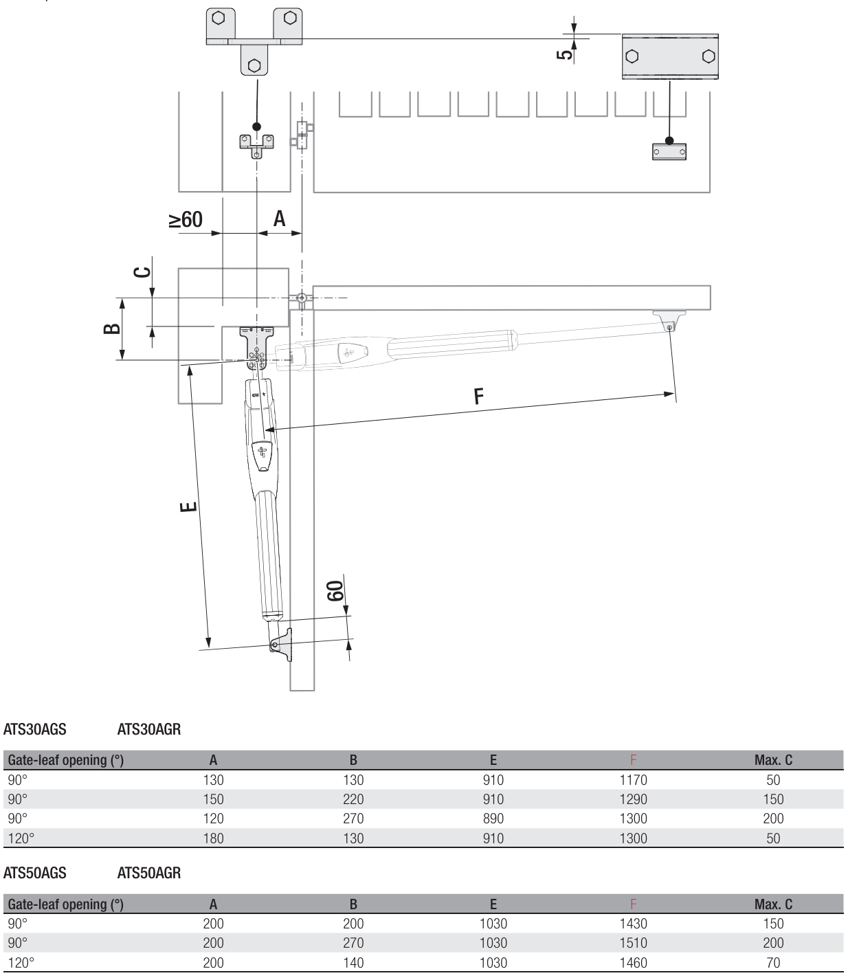
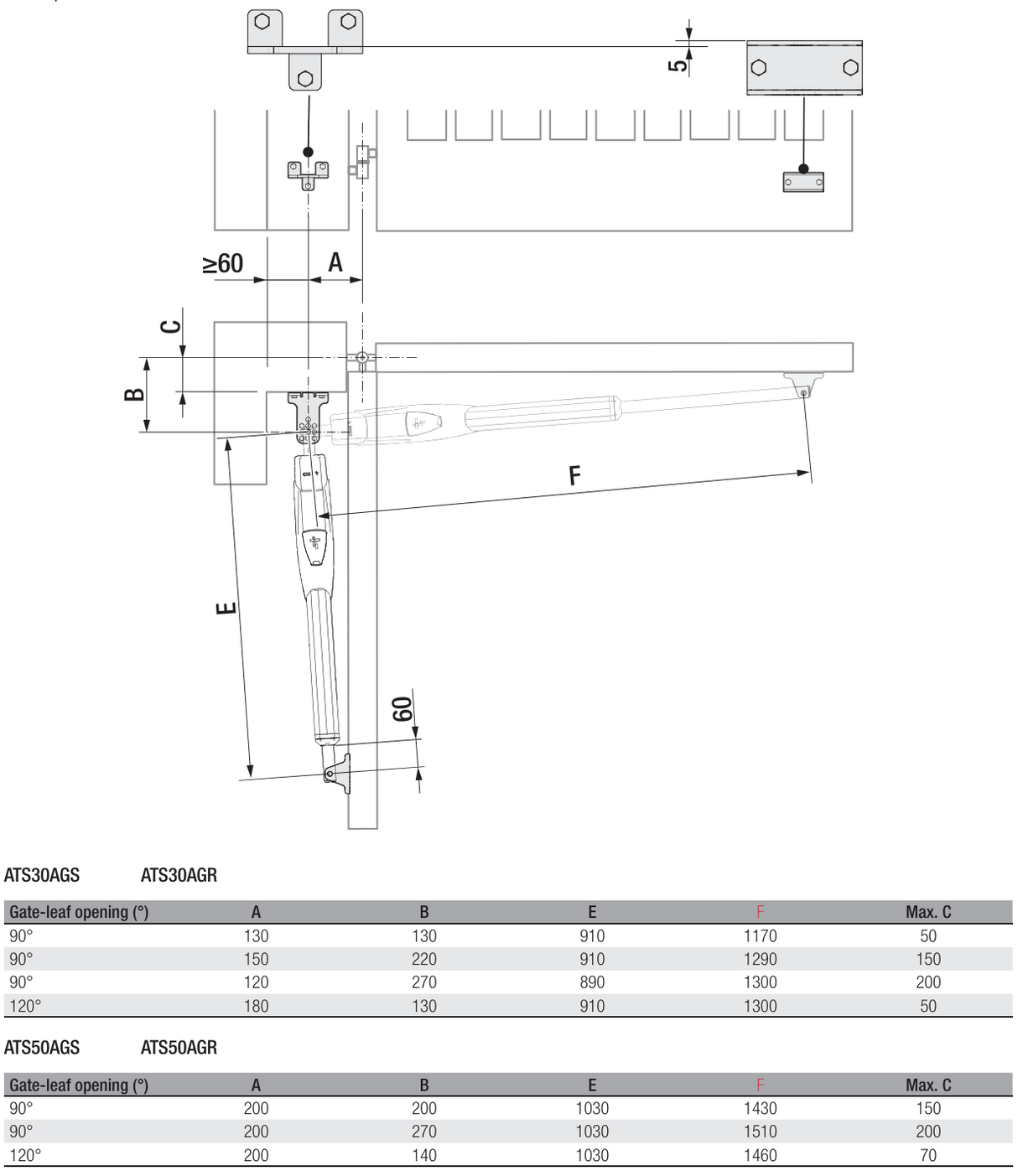
Parametri
Foglio di catalogo
I kit
Came motore per cancello ad anta singola, set con fotocellule ATS-5-AGS-LEFT/RIGHT-ZKIT
Disponibilità in magazzino
Storia del prezzo
Automazione CAME per cancello a battente ATS-50-AGS
Armadio con elettronica per cancello a due ante - funzioni di base ZF-1N
Scheda radio 433,9 MHz AF-43-S
Came TOP, Telecomando codice fisso, 2CH, CAME TOP-432-EE
Fotocellula per intonaco max. 10m DIR-10
Came motore per cancello a due ante, set con fotocellule ATS-5-AGS-ZKIT
Disponibilità in magazzino
Storia del prezzo
Automazione CAME per cancello a battente ATS-50-AGS
Armadio con elettronica per cancello a due ante - funzioni di base ZF-1N
Scheda radio 433,9 MHz AF-43-S
Came Telecomando rolling code, 4CH, CAME TOP44RBN
Fotocellula per intonaco max. 10m DIR-10


